Jeżeli zależy Ci na domu w doskonałej lokalizacji to ta oferta jest właśnie dla Ciebie.
Przedstawiamy ofertę sprzedaży domu położonego w Przemyślu przy ul. Wilczańskiej, w miejscu, gdzie znajduje się szybki wjazd na obwodnicę, a zarazem osłoniętym od ruchu drogowego, w spokojnym i kameralnym otoczeniu.
Jest to lokalizacja, która zapewnia nam wiele udogodnień związanych z codziennym życiem. Niedaleko znajduje się stacja benzynowa, market spożywczy, przystanek autobusowy, galeria handlowa, hotel z basenem i strefą SPA, szkoła podstawowa i przedszkole.
Budynek może stać się również doskonałą inwestycją pod wynajem dla firm ze względu na dużą ilość pokoi (7 pokoi), możliwość adaptacji strychu na dodatkowe pomieszczenia.
Posesja jest ogrodzona, brama wjazdowa na pilota.
DANE TECHNICZNE
Budynek wybudowany w 1985 roku w technologii tradycyjnej o konstrukcji murowanej z cegły, w całości podpiwniczony i posiadający strych, kryty blachą.
Dom posadowiony jest na działce o powierzchni 5,46 ara, a ponadto istnieje możliwość zakupu nieruchomości wraz z budynkiem gospodarczym, w którym mieszczą się dwa garaże o dodatkowej powierzchni 5,5 ara.
Okna w budynku częściowo wymienione na PCV, częściowo drewniane - nowego typu.
Ogrzewanie piecem na pellet drzewny z podajnikiem, instalacja centralnego ogrzewania rozprowadzona w całym budynku. Do domu doprowadzony jest również gaz, można więc zainstalować ogrzewanie gazowe.
Balkony oraz taras są odnowione.
Wnętrza częściowo odnowione, częściowo do odświeżenia.
POMIESZCZENIA
Poszczególne pomieszczenia zlokalizowane są na półpiętrach. Powierzchnia użytkowa domu to 154 m2
Parter zajmuje:
- kuchnia,
- 3 pokoje,
- łazienka.
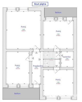
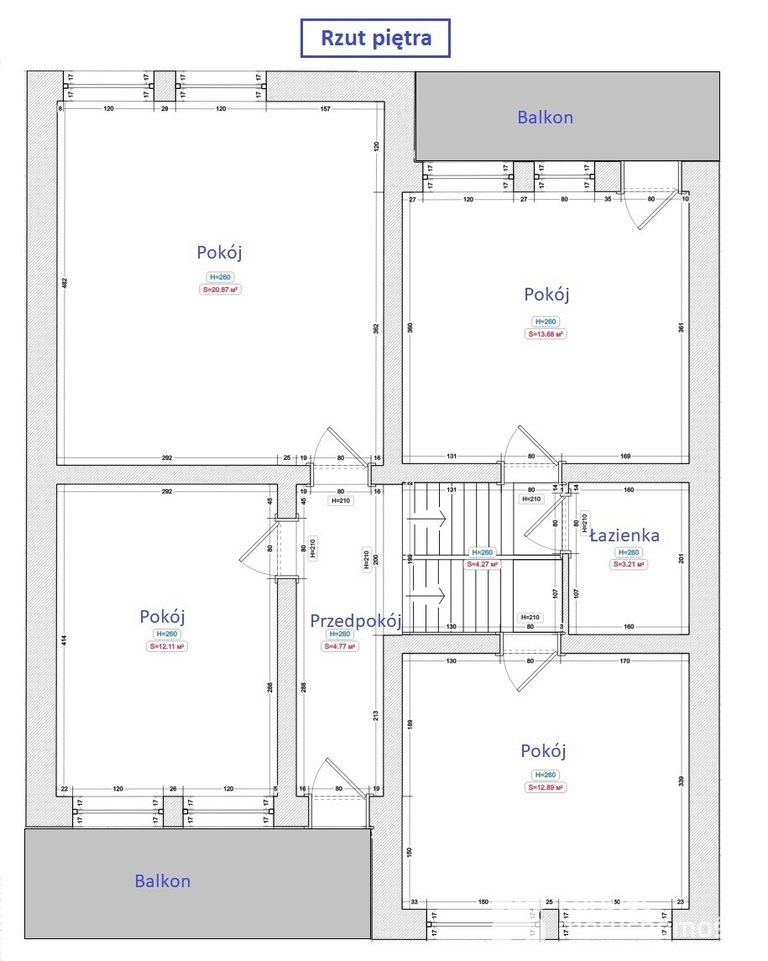
I piętro to 4 pokoje oraz łazienka a także balkony w dwóch pokojach.
Kolejną kondygnacją jest strych, na którym można urządzić dodatkowe pokoje.
Ponadto pod całym budynkiem mieści się przestrzenna piwnica, która częściowo jest przeznaczona na kotłownię, a częściowo na pomieszczenia gospodarcze.
MEDIA
- gaz w budynku,
- prąd,
- wodociąg miejski,
- kanalizacja miejska.
ATUTY NIERUCHOMOŚCI
- płaska zgrabna działka,
- świetna lokalizacja, z bardzo dobrym dojazdem,
- przestrzeń dla większej rodziny lub możliwość przekwalifikowania budynku na hostel dla pracowników firm,
- możliwość zakupu razem z dużym budynkiem gospodarczym z garażami.
Osobom chcącym dokonać zakupu poprzez kredyt hipoteczny służymy pomocą doświadczonego doradcy hipotecznego.
Przy zakupie nieruchomości należy uwzględnić koszty notarialne oraz wynagrodzenie biura nieruchomości.
Opis oferty zawarty na stronie internetowej sporządzany jest na podstawie oględzin nieruchomości i informacji uzyskanych od Właściciela, może podlegać aktualizacji i nie stanowi oferty określonej w art. 66 i następnych K.C.
Przemyśl 2901/5738/ODS
Dom w Przemyślu ul. Wilczańska

- Powierzchnia 219,00 m2
- Ilość pokoi 7
- Pow. działki 546,00 m2
- Cena za m2 3 424,66 PLN
- Cena 750 000,00 PLN




























