Na sprzedaż lokal w nowym apartamentowcu InforesPark
Lokalizacja: Lokal znajduje się na parterze w okolicy nowego apartamentowca InforesPark. To oferta wynajmu w jednej z najbardziej pożądanych lokalizacji w mieście. Jest to miejsce, które cieszy się wieloma zaletami takimi jak bliskość centrum miasta, nowoczesna infrastruktura, łatwy dojazd oraz możliwość zaparkowania samochodu. Lokal jest łatwo dostępny dla dużej ilość mieszkańców w InforesPark oraz okolicznych osiedli ( Warneńczyka, Glazera ). Okolica jest znana z przyjaznego i estetycznego otoczenia.
Dostęp do komunikacji miejskiej: Lokalizacja ta oferuje bezproblemowy dojazd komunikacją miejską do innych części miasta. Bliskość przystanku autobusowego (zaledwie 3 minuty spacerem) sprawia, że podróżowanie po mieście jest wygodne i efektywne.
Opis lokalu:
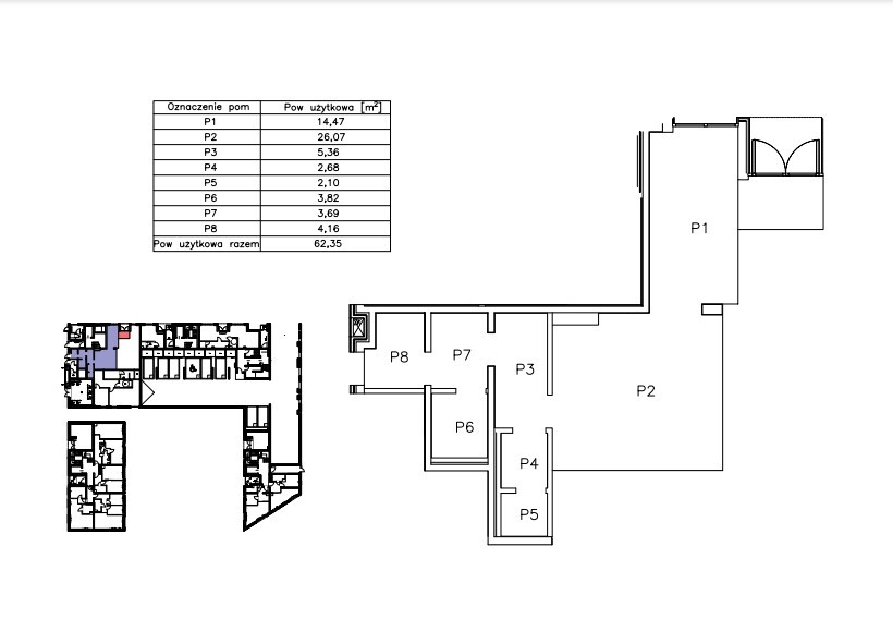
Lokal jest w pełni wykończony. W lokalu znajduje się 8 pomieszczeń o łącznej powierzchni 62,35 m2. Wejście do lokalu znajduje się na paterze od frontu z bezpośrednim dostępem do parkingu.
Możliwe przeznaczenie lokalu to:
Biurowe
Rekreacyjno-sportowe
Medyczne
Gastronomiczne
Koszty utrzymania wynikają z indywidualnego opomiarowania wszystkich rodzajów mediów oraz niskiego funduszu eksploatacyjnego i remontowego.
Cena: 8000 netto/m2
Kontakt:
Jeśli jesteś zainteresowany zakupem tego lokalu lub potrzebujesz więcej informacji, prosimy o kontakt pod numerem telefonu: 535 600 996.
Przemyśl 167/5738/OLS VIP
Na sprzedaż lokal na Osiedlu InforesPark

- Powierzchnia 62,35 m2
- Przeznaczenie Usługowa
- Cena za m2 8 000,00 PLN
- Cena 498 800,00 PLN













