Lokal nadający się pod działalność np: handlową, usługową, medyczną, biurową.
Lokal składa się z otwartej przestrzeni typu Open Space. Jest możliwość indywidualnej aranżacji wnętrza. Posiada dużą witrynę oraz wejście prosto z ulicy.
•na ścianach tynki gipsowe lub cementowo-wapienne nakładane maszynowo sufity nietynkowane
•Przeszklenia ślusarka aluminiowa o współczynniku przenikania ciepła U ≤ 1,1W/m2K dla całej fasady, w kolorze grafitowym
•Energia cieplna dostarczana jest za pośrednictwem wymienników zlokalizowanych w budynku z Miejskiego Przedsiębiorstwa Energetyki
Cieplnej S.A. w Krakowie. Lokale usługowe są opomiarowane licznikami c.o.
•Licznik energii elektrycznej do indywidualnego zamontowania przez Zakład Energetyczny po zawarciu umowy przez Nabywcę.
•Wentylacja mechaniczna nawiewno – wywiewna lokalu
Wysokość lokalu: 3,48 m
Możliwość łączenia lokali przylegających do siebie
Budynek zostanie oddany do użytkowania w III kwartale 2025 r.
Cena lokalu netto,
Cena garażu 48 500 zł brutto.
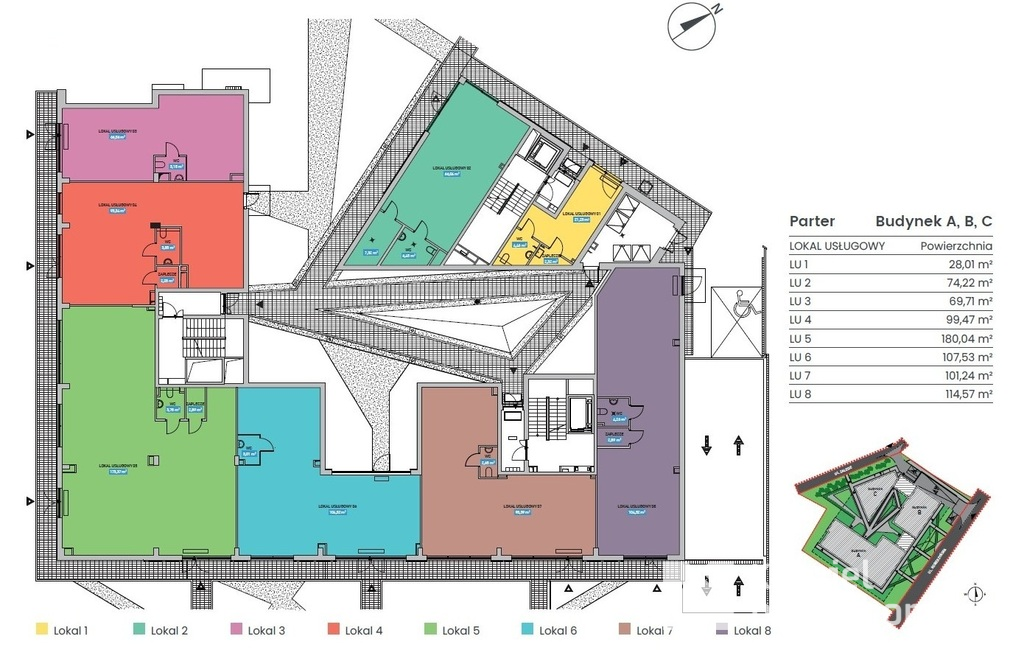
Dostępne są również Lokale o powierzchniach:
- 74 m²,
- 69 m²,
- 99 m²,
- 180 m²,
- 107 m²,
- 101 m²,
Pełna obsługa kredytowa.
Zapraszam na bezpłatną prezentację!
Niniejsze ogłoszenie jest wyłącznie informacją handlową i nie stanowi oferty w myśl art. 66, paragraf 1. Kodeksu Cywilnego.











