Przedstawiamy Państwu mieszkanie do sprzedaży znajdujące się w Przemyślu na os. Kazanów przy ul. Opalińskiego. Mieszkanie znajduje się w zadbanym, ocieplonym bloku na III piętrze, posiada balkon, jest to mieszkanie ciepłe, środkowe i niedrogie w utrzymaniu.
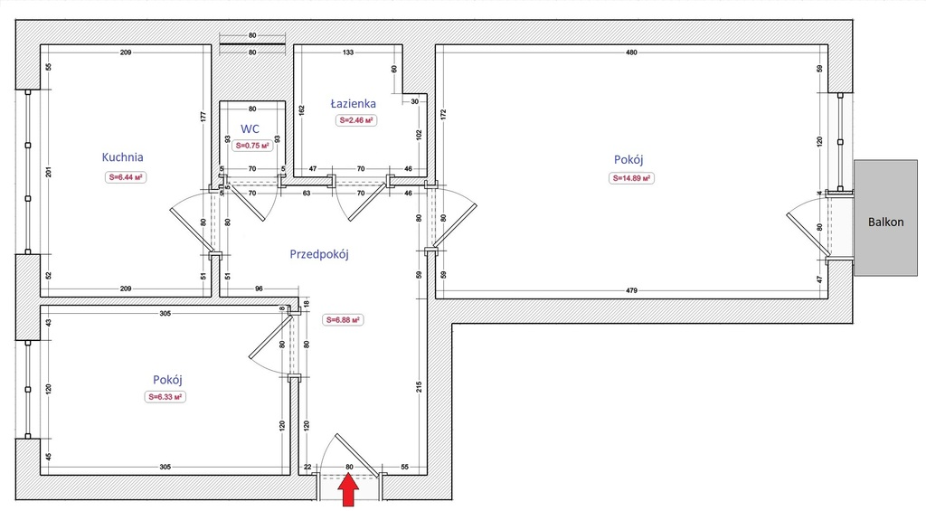
Powierzchnia użytkowa mieszkania to 37,70 m2 i składa się na nią:
- większy pokój z balkonem,
- mniejszy pokój,
- osobna kuchnia,
- łazienka,
- osobne WC,
- przedpokój.
Każde z pomieszczeń posiada niezależne wejście. Mieszkanie wymaga odświeżenia, można zatem je urządzić według własnego projektu.
Opłaty miesięczne wynoszą 440 zł, w nich zawiera się opłata za centralne ogrzewanie oraz opłaty eksploatacyjne do Spółdzielni Mieszkaniowej, oprócz tego należy uwzględnić opłaty za media czyli woda, prąd, śmieci.
Osiedle Kazanów to bardzo dobrze zorganizowane osiedle ze szkoła podstawową, przedszkolem a nawet żłobkiem. Znajdują się tam również markety spożywcze, place zabaw dla dzieci, tereny zielone, a także miejsca do rekreacji.
Z osiedla jest bardzo dobre i częste połączenie autobusowe w kierunku centrum.
Przemyśl 6083/5738/OMS
Mieszkanie dwupokojowe - Kazanów

- Powierzchnia 37,70 m2
- Ilość pokoi 2
- Piętro 3/4
- Cena za m2 6 870,03 PLN
- Cena 259 000,00 PLN


















