Prezentujemy Państwu ofertę sprzedaży mieszkania trzypokojowego położonego w Przemyślu przy ul. Łukasińskiego na osiedlu bloków na przeciwko dużego marketu spożywczego. Jest to bardzo dobra lokalizacja dobrze skomunikowana z centrum miasta oraz w pobliżu kilku praktycznych miejsc takich jak paczkomat, zespół parkowy, który daje możliwość spacerów z pupilem oraz sklepy spożywczo - przemysłowe z podstawowymi artykułami pierwszej potrzeby.
Cena do negocjacji.
Mieszkanie znajduje się na III piętrze ocieplonego bloku, jest bardzo ciepłe i ekonomiczne w utrzymaniu. Opłaty miesięczne do Wspólnoty mieszkaniowej to jedyne 328 zł, a w ta kwotę wliczone jest ogrzewanie mieszkania ze wspólnej kotłowni osiedlowej. Dodatkowo do kosztów utrzymania należy doliczyć media takie jak prąd, wodę, śmieci.
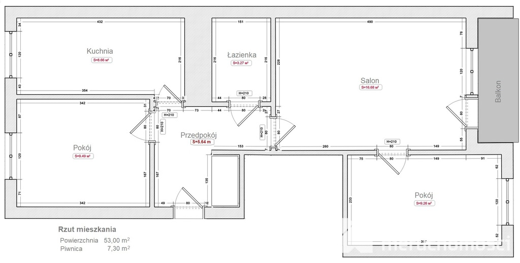
Mieszkanie posiada 3 pokoje, jego powierzchnia to 53 m2 i następujący układ pomieszczeń:
- duży pokój z wyjściem na zabudowany balkon,
- sypialnia z wejściem od dużego pokoju
- druga sypialnia z niezależnym wejściem z przedpokoju,
- kuchnia z oknem,
- łazienka z WC,
- przedpokój.
Do mieszkania przynależna jest piwnica.
Wspólnota Mieszkaniowa dba o teren wokół, zorganizowała pokaźny parking, gdzie nie brakuje miejsc parkingowych. Blok jest ocieplony, okna w mieszkaniu wymienione na PCV. Mieszkanie ogólnie jest w dobrym stanie, wymaga prac modernizacyjnych i przystosowania do własnych potrzeb.
Jest to propozycja, która z pewnością zainteresuje rodziny, które potrzebują mieszkania trzypokojowego, niedrogiego w utrzymaniu.
Skutecznie pomożemy również w uzyskaniu korzystnego kredytu hipotecznego, nasz doradca finansowy dopasuje odpowiednią ofertę.
Zapraszam do kontaktu.
Przemyśl 6143/5738/OMS
Mieszkanie na zadbanym osiedlu ul. Łukasińskiego

- Powierzchnia 53,00 m2
- Ilość pokoi 3
- Piętro 3/4
- Cena za m2 6 603,77 PLN
- Cena 350 000,00 PLN
























