Oferta bez prowizji i podatku PCC!!! - oferta bezpośrednio od dewelopera
Na sprzedaż trzypokojowe mieszkanie znajdujące się w dzielnicy Załęże o powierzchni 52,60 m2 (po podłodze 55,13 m2) znajdujące się na drugim piętrze niskiej zabudowy
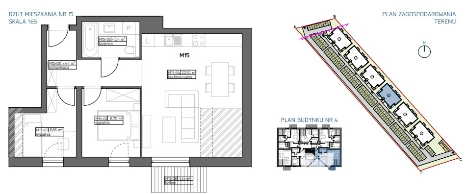
Układ pomieszczeń:
- Salon z aneksem kuchennym
- Sypialnia
- Pokój
- Przedpokój
- Łazienka
Dodatkowo:
- Balkon - 3,10 m2
Do każdego z mieszkań przeznaczono zewnętrzne miejsce parkingowe w cenie mieszkania o wymiarach 250x500 cm.
Standard mieszkania (deweloperski):
- tynki gipsowe
- wylewki
- parapety zewnętrzne
- grzejniki panelowe, w łazienkach – grzejniki drabinkowe, indywidualne liczniki
- instalacja elektryczna w mieszkaniach 230V, wypust 3-fazowy dla kuchni elektrycznej trójfazowej zakończony puszką z kostka zaciskową, gniazdka i łączniki w każdym pomieszczeniu lokalu, wypusty oświetleniowe we wszystkich pomieszczeniach lokalu
Lokalizacja:
Osiedle znajduje się w atrakcyjnej, spokojnej i zielonej części miasta. Lokalizacja pozwala na szybki dojazd do autostrady A4 i drogi ekspresowej S19 w kilka minut.
W pobliżu osiedla znajduje się także dworzec PKP "Rzeszów - Załęże"
Bardzo szybko można dostać się na lotnisko "Jasionka", do którego kursuje także pociąg podmiejski.
Nowoczesna architektura z dobrze przemyślanym układem pomieszczeń, idealnie wpisują się w potrzeby przyszłych mieszkańców.
To inwestycja dla ludzi, którzy cenią sobie wysoki standard, komfort i nowoczesny styl.
W bliskim sąsiedztwie inwestycji usytuowane są:
- Sklep spożywczy Żabka – odległość 400 metrów.
- Szkoła Podstawowa nr 6 w Rzeszowie – odległość 1000 metrów.
- Sklep spożywczy Delikatesy Centrum – odległość 800 metrów.
- Rzeszowski Dom Kultury – odległość 1500 metrów.
- Kościół Katolicki – odległość 1500 metrów.
Dodatkowe koszty:
- opłata przyłączeniowa - 13 668,35 płatne na 14 dni przed odbiorem mieszkania
- dopłata do większego miejsca postojowego o wymiarach 360x600 cm (bliżej wejścia do klatki) - 5000 zł brutto
- dodatkowe miejsce parkingowe - 22 000 zł brutto
Mieszkanie gotowe do odbioru w stanie deweloperskim, dodatkowo dostępna opcja wykończenia mieszkania pod klucz w cenie 45 000 zł (przykładowe wykończenie na załączonych zdjęciach)
W powyższej inwestycji posiadamy również mieszkania o innych układach i metrażach
CENA ŁĄCZNIE: 481 808 zł
Zapraszam do kontaktu, obejrzenia inwestycji jak również odwiedzenia naszego biura KUPRIEL Nieruchomości w Rzeszowie przy ulicy Reformackiej 1/5 (1 piętro)
Oferujemy pomoc w czasie całej transakcji oraz profesjonalne doradztwo kredytowe
Gwarantujemy dodatkowe zniżki na materiały wykończeniowe i remontowe do 20%%
Tomasz Kurowski
Specjalista ds. nieruchomości
tel. 692 500 800
e-mail: t.kurowski@kurpiel.eu
Niniejsze ogłoszenie jest wyłącznie informacją handlową i nie stanowi oferty w myśl art. 66, paragraf 1. Kodeksu Cywilnego.
Rzeszów 6155/5738/OMS
Gotowe 3 pokojowe mieszkanie | 52,60 m2 | Załęże

- Powierzchnia 52,60 m2
- Ilość pokoi 3
- Piętro 2/2
- Cena za m2 8 900,00 PLN
- Cena 468 140,00 PLN




















