Kameralny blok na Winnej Górze - komfort i wygoda w zasięgu ręki!
Szukasz przytulnego mieszkania w spokojnej okolicy, ale blisko centrum miasta? Osiedle Nove Monte Cassino na Winnej Górze w Przemyślu to idealne miejsce dla Ciebie! Oferujemy kameralny 3-piętrowy blok w kształcie litery L, w którym masz szansę znaleźć swoje wymarzone mieszkanie.
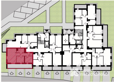
Oferta dotyczy mieszkania C3 na parterze, w skład którego wchodzi:
* komunikacja 8,41 m2
* łazienka 5,09 m2
* pokój 9,36 m2
* pokój 9,57 m2
* salon z aneksem kuchennym 23,26 m2
Powierzchnia mieszkania 55,69 m2
Balkon 19,48 m2
Dostępne są dobrowolne miejsce postojowe w cenie 16.000-18.000 zł lub garaż indywidualny jednostanowiskowy oraz jedno miejsce postojowe przed garażem w cenie 48.000 zł
Komórka lokatorska w cenie 16.500 zł
Dlaczego warto wybrać tutaj mieszkanie?
- Szeroki wybór metraży: Oferujemy mieszkania o powierzchni od 37 do 68 m2, dostosowane do potrzeb zarówno singli, par, jak i rodzin z dziećmi. Każdy znajdzie tu idealny układ pomieszczeń, który zapewni komfort i wygodę życia.
- Funkcjonalne układy: Przemyślane układy pomieszczeń zapewniają optymalne wykorzystanie przestrzeni i tworzą komfortowe warunki do życia. Każde mieszkanie posiada balkon lub taras, idealny do wypoczynku na świeżym powietrzu.
- Wysoki standard budowy: solidne materiały budowlane i nowoczesne rozwiązania technologiczne.
- Nowoczesne rozwiązania: W budynku znajdują się dwie niezależne części, każda z dwustronną windą dla Twojej wygody. Jasna i przestronna klatka schodowa, a także nowocześnie zaprojektowane części wspólne dopełniają kameralny charakter inwestycji.
- Dodatkowe udogodnienia: Dla Twojej wygody w budynku znajduje się 11 indywidualnych garaży z automatyczną bramą, zapewniając bezpieczne miejsce do parkowania samochodu. Ogrzewanie podłogowe w łazienkach zapewni komfort termiczny w chłodniejsze dni, a nowoczesne wideodomofony zwiększą bezpieczeństwo Twojego mieszkania. - Lokalizacja: Osiedle usytuowane jest w otulinie zieleni, bliskość komunikacji miejskiej zapewnia wygodę i łatwy dostęp do wszystkich niezbędnych udogodnień.
Nove Monte Cassino to nie tylko miejsce do zamieszkania, to styl życia! Zamieszkaj w kameralnym bloku, ciesz się komfortowym mieszkaniem i funkcjonalną przestrzenią. Stwórz swoje wymarzone miejsce w zaciszu zieleni, z dala od miejskiego zgiełku, a jednocześnie blisko centrum Przemyśla.
Zapraszamy do kontaktu:
Alicja
TEL: + 48 507-219-494
e-mail: alicja@kurpiel.eu
Piotr
TEL: + 48 535-600-996
e-mail: piotr@kurpiel.eu
Adres biura:
37-700 Przemyśl, Jagiellońska 12
Dodatkowe informacje dostępne w biurze:
· Informacje o historii i wizji firmy deweloperskiej,
. Szczegółowe informacje na temat technologii budowy i standardu wykończenia domów,
. Opis dodatkowych udogodnień, informacje o dostępnych promocjach i formach finansowania zakupu nieruchomości,
. Wizualizacje i zdjęcia inwestycji.
. Doradca kredytowy dla zainteresowanych finansowaniem zakupu z pomocą banku.
Ogłoszenie ma charakter informacyjny, nie stanowi oferty handlowej w rozumieniu Art.66 KC.
Przemyśl 6205/5738/OMS
C3 Mieszkanie 3-pokojowe z balkonem, parter

- Powierzchnia 55,69 m2
- Ilość pokoi 3
- Piętro parter/3
- Cena za m2 8 400,00 PLN
- Cena 467 796,00 PLN












