O INWESTYCJI
Do wynajęcia nowoczesna hala produkcyjno–magazynowa w Przemyślu, zlokalizowana zaledwie 9 km od przejścia granicznego w Medyce, przy drodze krajowej nr 28.
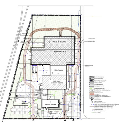
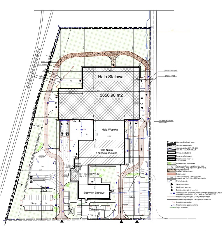
Obiekt oferuje łączną powierzchnię 3816 m², co stwarza szerokie możliwości zarówno do prowadzenia działalności produkcyjnej, magazynowej, jak i logistycznej. ISTNIEJE MOŻLIWOŚĆ WYNAJMU POŁOWY OBIEKTU Z NIEZALEŻNYM DOSTĘPEM W CENIE 7 EURO
Hala posiada wysokość od 7,4 m do 8,5 m, co umożliwia wysokie składowanie oraz obsługę towarów o dużych gabarytach.
Obiekt wyposażony jest w 4 doki rozładunkowe:
- 2 po stronie wschodniej
- 2 po stronie zachodniej
Przestrzeń wokół obiektu jest w całości utwardzona i wyłożona kostką brukową, przystosowana do ruchu samochodów ciężarowych. Dostępny jest pełnowymiarowy plac manewrowy oraz miejsca parkingowe dla pracowników i samochodów dostawczych.
Bezpośrednie sąsiedztwo funkcjonujących już zakładów KBC Euduco, INGLOT oraz Oddziału Celnego i Krajowej Administracji Skarbowej stanowi istotny atut tej lokalizacji. W najbliższym otoczeniu działa aktywna strefa przemysłowo–komercyjna.
POWIERZCHNIE
- Hala produkcyjno–magazynowa: 3816 m²
- Lokale socjalne (opcjonalnie): 258,26 m²
- Lokale biurowe (opcjonalnie): 148,8 m²
STANDARD TECHNICZNY
- Ogrzewanie: nagrzewnice powietrza zasilane ciepłem technologicznym z własnej kotłowni – zapewniające temperaturę ok. 20°C
- Wentylacja: instalacja wentylacji mechanicznej spełniająca wymagania sanitarno–higieniczne
- Posadzka przemysłowa przystosowana do ruchu wózków widłowych
- Dokowa i poziom 0 obsługa logistyczna
- Brak ograniczeń spowodowanych siatką słupów konstrukcyjnych
BEZPIECZEŃSTWO Nieruchomość znajduje się na terenie zamkniętego kompleksu hal i budynków biurowych:
- teren ogrodzony
- w pełni oświetlone place, parkingi i drogi dojazdowe
- monitoring, system alarmowy i ochrona
Bezpośrednie sąsiedztwo Oddziału Celnego Podkarpackiego Urzędu Celno-Skarbowego oraz Krajowej Administracji Skarbowej dodatkowo podnosi bezpieczeństwo i rangę lokalizacji.
LOKALIZACJA
- szybki i bezpośredni dojazd do ul. Lwowskiej i przejścia granicznego w Medyce
- bliskość infrastruktury celnej oraz terminali przeładunkowych
- doskonała lokalizacja dla firm logistycznych, produkcyjnych i handlowych obsługujących kierunki wschodnie
WARUNKI FINANSOWE Czynsz:
- 6,14 EUR / m² – hala produkcyjno–magazynowa
- 7,16 EUR / m² – lokale biurowe
- 7,16 EUR / m² – lokale socjalne (z aneksem kuchennym)
- Możliwość wynajmu części powierzchni
- 1 EUR / m² – powierzchnia hali produkcyjno–magazynowej
- 1 EUR / m² – łączna powierzchnia biur i lokali socjalnych
- produkcyjnej
- logistycznej
- magazynowej
- spedycyjnej
- obsługi celnej i handlu międzynarodowego


















